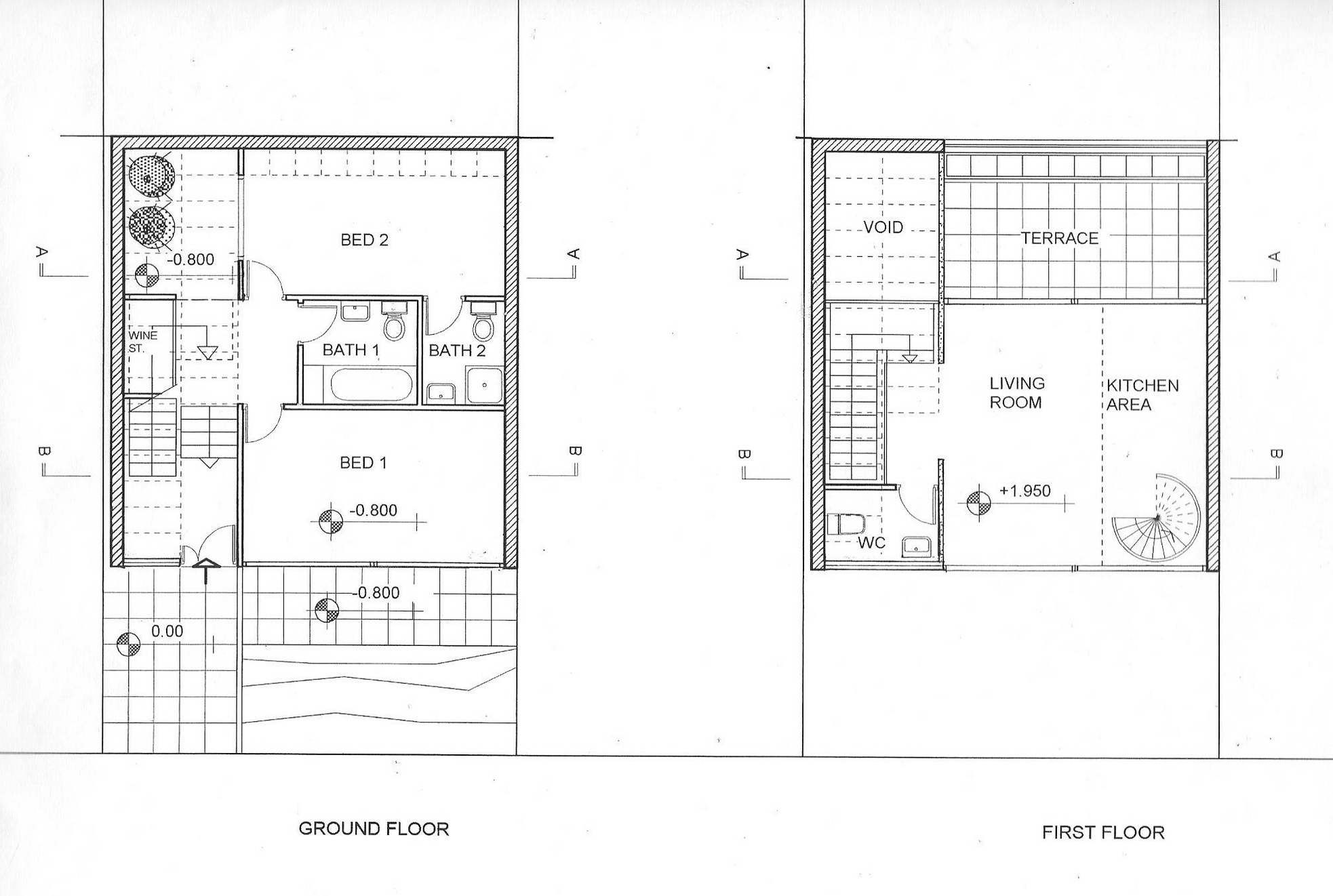
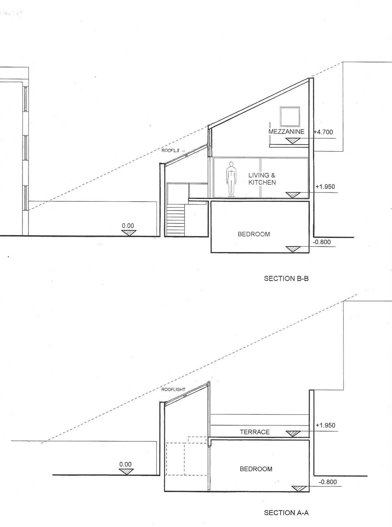
Although it was an unrealised commission, the design for this back garden house was conceived at the initial stage for a single occupant. Starting without drawing any plans, working with a single cube, then making openings and additions from different materials for preserving the integrity of the simple box, I concentrated on a 3D object to support and contain the occupant's physical movements. Deploying creatively the main planning restriction for the building's height, a sloping line from the top of one of the neighbouring buildings to the bottom of the ground floor window of the next neighbouring building, I designed the facade to the back road without seeking to assimilate the house's appearance and avoiding to compromise the concept of the simple cube. The house was given two access points, from the back road and from the garden, to facilitate the occupant's choice of entry: either on the ground floor, where the sleeping area is located, or on the first floor, which was designed as the living and working area.
Having initiated and worked on many unrealized projects as a designer, my preoccupation with the question of creative value, which for architecture relates to the local economy, was compared to the question of creative rights, similar but not quite the same to authorial or intellectual property rights for writers, which is not connected to local economies.
Architecture is also defined by the workers' conditions in the construction industry, but also in the materials production industry. The simple bare design intended to unpack the hidden narratives behind the glamor of the architectural design and the fetishization of pre-fabricated materials, at the same time exposing the public role of architecture.
Architecture is often read as artwork, but it's not private, in view of cultural policies that conceptualise art as private self-expression or bearing an identifiable symbolic function to be incorporated in relevance to a cultural audience; many artistic precedents have anyway already challenged that position.
While reconsidering the boundaries between art and architecture, architecture's publicness can fulfill more easily the function of the "difficult artwork". The unrealized project, the demolished or part-demolished building, are also the difficult artworks, forcing us to examine the often political questions of local context and site-specificity.


















